


















Auf dem Hummel
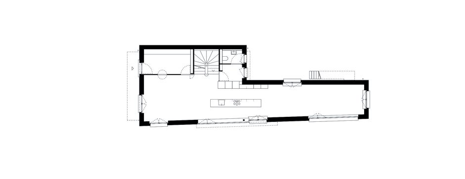
Aufgrund der begrenzten Platzverhältnisse der Parzelle entstand ein schmales Gebäude, das sich in Form eines eingeschossigen, langgestreckten Baukörpers tief in den Garten bis nahezu an die hintere Grundstücksgrenze erstreckt. Das Untergeschoss wurde in minimaler Massivbauweise ausgeführt, während ab der Bodenplatte auf Holzbau gesetzt wurde.
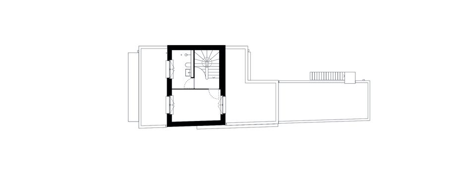
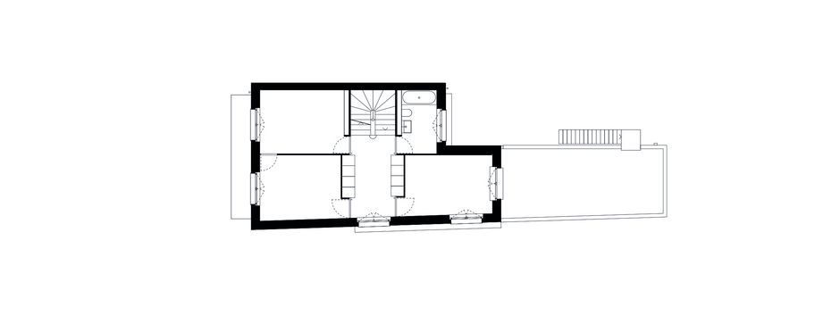
Im Erdgeschoss dominiert ein offener, längsorientierter Raum, während die Obergeschosse kleinteiliger gegliedert sind, mit drei Meter hohen Räumen und raumhohen Türen. Das Gebäude ist durch eine Stützmauer zum Strassenniveau um ein Geschoss erhöht. Im Westen öffnet sich ein Sitzplatz zur Strasse, rund um das Haus erstreckt sich ein schmaler Garten mit Durchblicken durch das Gebäude. Eine Aussentreppe führt auf die Terrasse im ersten Obergeschoss.
Projekt
Neubau Wohnhaus
Bauherrschaft
Privat
Ort
Basel, BS
Ausführung
2025
Team
Architektur und Bauleitung: Benedikt Wider, Patrick Jaeger, Ariel Koechlin
Fotografie
Federico Farinatti, Cedric Christopher Merkli (1.Bild)























